• Home
  • Buy
    • Buy
    • Residential
    • Acreage Semi Rural
    • Rural
    • Vacant Land
    • Commercial
    • Investment
    • Inspections
    • Auction
    • Wishlist
    • Buying Tips
  • Rent
    • Rent
    • Residential
    • Commercial
    • Application
    • Emergency Repairs
    • Tenant Portal
    • Wish List
  • Sell
    • Sell
    • Request Appraisal
    • Sold Properties
    • Selling Tips
    • Why Sell With Us
  • Investors
    • Investors
    • Property Management You Can Trust
    • Benefits of Property Management
    • Quarterly Newsletter
    • Rental Appraisal
    • Landlord Login
  • Content
    • Content
    • Testimonials
  • About
    • About
    • Company Profile
    • Meet The Team
    • About Our Community
    • Privacy Policy
    • Careers
  • Contact

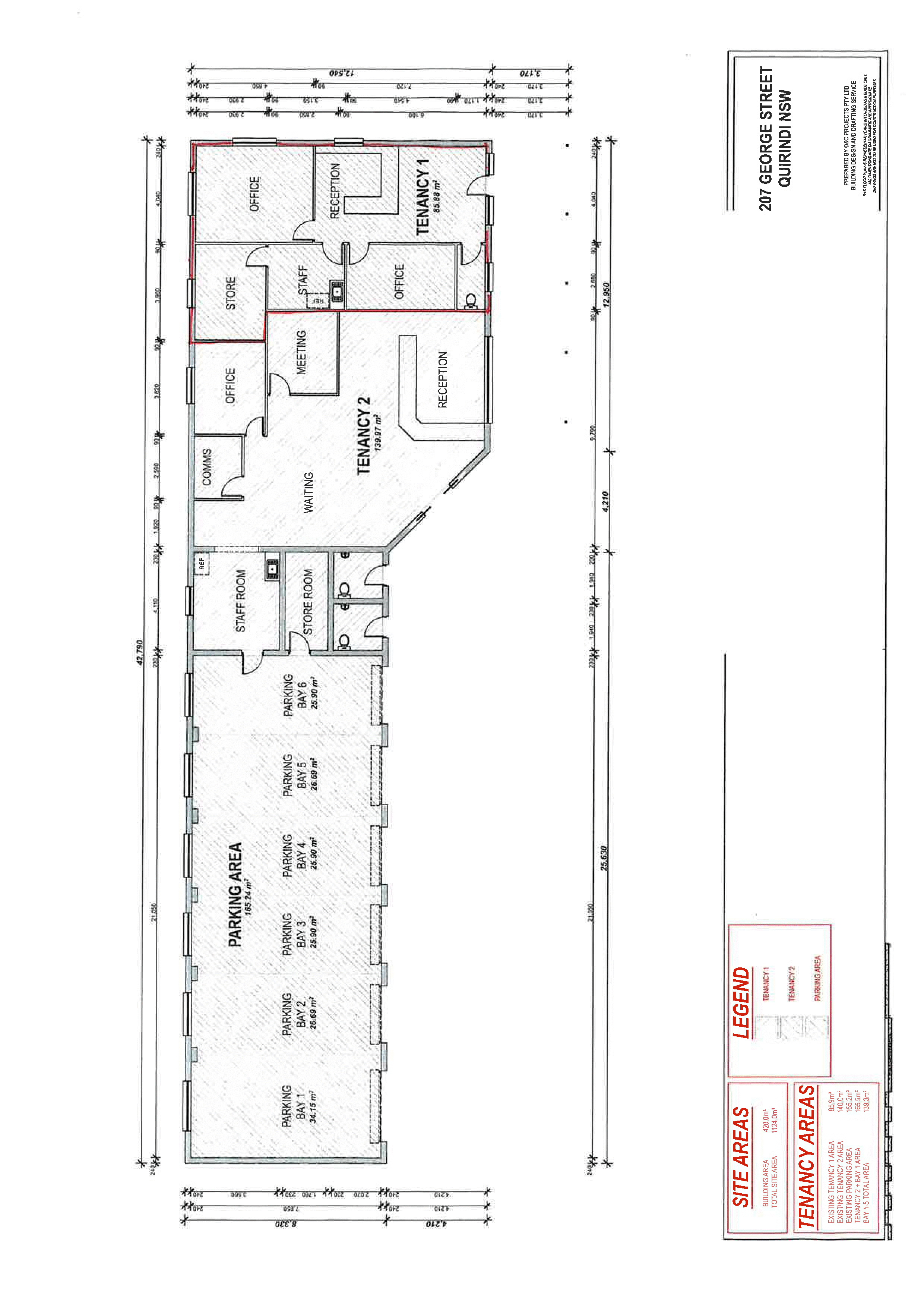
Quirindi 207 George Street

CBD high profile office to lease

Leased

Main street office in high profile location, centre of Quirindi CBD.
Large reception with counter/desk, large rear office, store room, kitchen/break out area and separate toilet. 85.88 sqm.
Plenty of off-street parking
Office ready for occupancy.
Ideal also for small retail or medical practice.
Call Dan Watson on 0459 347562 to arrange an inspection.

Property Features

1

Open Times

Dan Watson

Make an enquiry

Dan Watson

Licensed Real Estate Agent

  • P 0459347562

Ella Neill

Professional Assistant

  • P 0427003888
Your Details
Your Enquiry
  1. Please describe how we can be of assistance to you.

  2.  

    Would you like to join our mail list?

Submit

Share this property

  • Email a friend

  • Your Details
    Your Friend's Details
    Submit
  • Share on Facebook

  • Share on Twitter

  • Details
  • Features
  • Floorplan
  • Map
  • Enquire
  • Share

Quirindi

207 George Street

CBD high profile office to lease

Leased

Main street office in high profile location, centre of Quirindi CBD.
Large reception with counter/desk, large rear office, store room, kitchen/break out area and separate toilet. 85.88 sqm.
Plenty of off-street parking
Office ready for occupancy.
Ideal also for small retail or medical practice.
Call Dan Watson on 0459 347562 to arrange an inspection.

Property Features

Floorplan

View floorplan

Make an enquiry

Dan Watson

Licensed Real Estate Agent

  • P 0459347562

Ella Neill

Professional Assistant

  • P 0427003888
Your Details
Your Enquiry
  1. Please describe how we can be of assistance to you.

  2.  

    Would you like to join our mail list?

Submit

Share this property

  • Email a friend

  • Your Details
    Your Friend's Details
    Submit
  • Share on Facebook

  • Share on Twitter

Powered By ReNet | Privacy Policy | Disclaimer